Ajustar viewports de capa de hoja o de capa de diseño existentes

Comando

Ruta de acceso

Editar viewport

        Modificar

        Menú de contexto

Para ajustar un viewport:

  1. Seleccione el viewport.

  2. Seleccione el comando. Se abre el cuadro de diálogo Editar viewport (ver Modificar viewports para una descripción detallada de sus parámetros).

  3. Haga clic en Ajuste para entrar al modo Editar ajuste.

  4. Seleccione si desea mostrar el viewport exterior del área de ajuste. Seleccione Mostrar ajuste del viewport exterior para ver el resto del viewport; seleccione Ajuste exterior gris para ver el área exterior del ajuste en gris. Estas opciones facilitan el dibujo y la edición, ya que los objetos fuera del ajuste pueden ajustarse.

    Para ver otros objetos de capa mientras se encuentra en el modo Editar ajuste, seleccione Mostrar otros objetos mientras esté en modo editar sobre la ficha Presentación de las preferencias de Vectorworks (ver Preferencias Vectorworks: Ficha presentación).

    Como alternativa, haga clic con el botón derecho del mouse sobre un viewport y seleccione Editar ajuste desde el menú de contexto.

    Un borde de color alrededor de la ventana de dibujo indica que está en un modo de edición. El comando Salir de ajuste de viewport estará disponible desde el menú Modificar, y el botón Salir de Viewport Ajuste estará visible en la esquina derecha superior de la ventana de dibujo.

  5. Cree un objeto 2D, como un rectángulo, círculo o polilínea. El objeto 2D debe definir un área; por ejemplo, no podrá utilizarse una línea 2D. Posicione el objeto 2D para delimitar la nueva área de visualización del viewport. El relleno de un objeto viewport ajustado será siempre Ninguno; sin embargo, el estilo de pluma puede establecerse desde la paleta Atributos mientras se encuentra en el modo Editar ajuste.

  6. Use la herramienta Sobrevolar para ajustar la vista (ver Sobrevolar).

    El cuadro de límite del objeto ajustado es también el rectángulo de perspectiva fragmentada, si el viewport se encuentra en una proyección de Perspectiva. Transformar el objeto ajustado también modifica el rectángulo de perspectiva recortada.

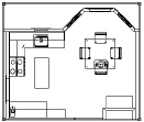
    Crop_vp_1.png 

  7. Haga clic en Salir de Viewport Ajuste para volver a la capa de hoja o a la capa de diseño.

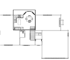
  8. Crop_vp_2.png 

  9. Se muestra el viewport ajustado; en la paleta Información del objeto, el estado de Ajuste cambia a Sí.

  10. Se puede cambiar, reemplazar o eliminar el viewport ajustado, seleccione el viewport y luego seleccione Modificar > Editar viewport para volver a ingresar al modo Editar ajuste. Como alternativa, haga clic con el botón derecho del mouse y seleccione Editar desde el menú de contexto.

Para cambiar la visibilidad del objeto ajustado, cambie la configuración en Ajustar visible en la paleta Información del objeto.

~~~~~~~~~~~~~~~~~~~~~~~~~

Modificar viewports

Propiedades de viewport

Estado de viewport

Actualizar viewports

 

¿Fue útil esta página?