Recorte de vínculos de capa

Puede recortar los objetos de vínculo de capa de manera parecida a como lo haría en encuadres (consulte el tema Cómo recortar encuadres de lámina o de capa de diseño), aunque no aparecerá el área fuera del recorte como ocurriría en un encuadre de lámina o de capa de diseño. Cuando se ajusta, solo se muestra una parte del vínculo de capa; aumente la escala de la capa para crear una vista de detalle. Los vínculos de capa con capas con referencias del grupo de trabajo también se pueden ajustar.

Para ajustar un vínculo de capa:

Seleccione un vínculo de capa existente.

Desbloquear el vínculo de capa al seleccionar Modificar > Desbloquear.

Pulse Editar ajuste en la paleta Información del objeto para introducir el modo Recorte del vínculo de capas.

Como alternativa, haga clic con el botón derecho del ratón sobre un vinculo de capa y seleccione Editar ajuste en el menú contextual.

Un borde de color alrededor de la ventana de dibujo indica que está en un modo de edición. El comando Salir del ajuste estará disponible en el menú Modificar y el botón Salir vínculo de capa Ajuste estará visible en la esquina derecha superior de la ventana de dibujo.

Cree un objeto 2D, como un rectángulo, círculo o polilínea. El objeto 2D debe definir un área; no se podrá usar, por ejemplo, una línea 2D. Posicione el objeto 2D para delimitar la nueva área de presentación del ajuste. El relleno de un objeto ajuste será siempre Ninguno; sin embargo, el estilo de pluma puede establecerse en la paleta Atributos mientras se encuentra en el modo Editar ajuste. Establezca el estilo de pluma a Ninguno (o la clase de objeto de ajuste a invisible) para hacer invisible el objeto de ajuste.

Use la herramienta Sobrevolar para ajustar la vista. Consulte el tema afín, Flyover.

L_link_crop1.png 

Pulse Salir Vínculo de capa Ajuste, o seleccione Modificar > Salir del ajuste para regresar al dibujo.

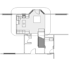
Se muestra el vínculo de capa ajustado. En la paleta Información del objeto, el estado de ajuste ha cambiado a .

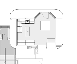
Al aumentar la escala de la capa con el vínculo de capa, y al hacer visibles otras capas, se puede mostrar un plano de piso (capa de diseño original) junto a una vista detallada del plano de piso (vínculo de capa acercado y ajustado).

L_link_crop2.png 

Para cambiar, reemplace o elimine el recorte del vínculo de capas, seleccione el vínculo de capas recortado y luego elija Editar ajuste en la paleta Información del objeto para volver a introducir al modo de ajuste. Pulse Salir Vínculo de capa Ajuste, o seleccione Modificar > Salir del ajuste para regresar al dibujo.

Todo el vínculo de capa aparecerá si se crea un encuadre de un vínculo de capa ajustado.

Creating layer links

 

¿Fue útil esta página?