Cropping layer links
Layer link objects can be cropped in a similar manner to viewports (see Cropping existing sheet layer or design layer viewports), although the area outside of the crop cannot be displayed as it can for a sheet layer or design viewport. When cropped, only a portion of the layer link displays; increase the scale of the layer to create a detailed view. Layer links with workgroup-referenced layers can also be cropped.
To crop a layer link:
Select an existing layer link.
Unlock the layer link by selecting Modify > Unlock.
Click Edit Crop from the Object Info palette to enter object editing mode (see Object editing mode).
Alternatively, right-click on a layer link and select Edit Crop from the context menu.
Create a 2D object such as a rectangle, circle, or polyline. The 2D object must define an area; a 2D line, for example, cannot be used. Position the 2D object to delimit the new crop display area. The fill of a cropping object is always None; however, the pen style can be set from the Attributes palette while in Edit Crop mode. Set the pen style to None (or the crop object class to invisible) to make the crop object invisible.
Use the Flyover tool to adjust the view (see Flyover).
Exit object editing mode to return to the drawing.
The cropped layer link is displayed. In the Object Info palette, the crop status has changed to Yes.
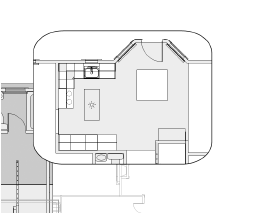
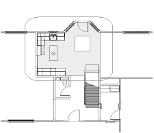
By increasing the scale of the layer with the layer link, and making other layers visible, a floor plan can be displayed (original design layer) along with a detailed view of the floor plan (zoomed in, cropped layer link).
To change, replace, or delete the layer link crop, select the cropped layer link and then select Edit Crop from the Object Info palette to re-enter object editing mode. Exit object editing mode to return to the drawing.
The entire layer link is displayed if a viewport of a cropped layer link is created.
