Concepto: Bordes del rótulo de lámina
Nivel de dificultad: Intermedio
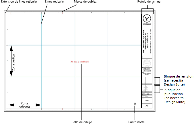
El objeto de borde del rótulo de lámina sirve funciones dobles de presentación y mantenimiento de registro en dibujos de Vectorworks. La herramienta Borde del rótulo de lámina no solo diseña la disposición de bordes de hoja y bloques de título, sino que también proporciona una manera para registrar y actualizar información esencial sobre el proyecto, hojas individuales, equipo de proyecto, e historial de revisiones y publicaciones (con productos Design Suite). Registros de datos asociados con un objeto de borde del rótulo de lámina son personalizados y actualizados usando el cuadro de diálogo Configuraciones de borde del rótulo de lámina. Estos datos de registro pueden ser vinculados a bloques de texto en el diseño de borde del rótulo de lámina para que el texto de los bloques de título siempre reflejen el valor actual de los datos.
Disponible con productos Design Suite, el Administrador de bloque de título proporciona una rápida manera para administrar múltiples bordes del rótulo de lámina de manera simultánea, incluyendo aquellos en capas en archivos externos; consulte Administrador de bloque de título. Esta es una manera eficiente para agregar o editar revisiones y publicaciones que involucran múltiples capas, para crear hojas de cálculo de revisiones y publicaciones, y para asegurar que los bloques de título están listos para ser publicados. Por ejemplo, con publicación por lotes tiene la opción de agregar una publicación completa al conjunto de publicaciones con un solo clic.

La herramienta Borde del rótulo de lámina, con el cuadro de diálogo Configuraciones de borde del rótulo de lámina asociado y el comando Administrador de bloque de título, sirven funciones diferentes pero complementarias.
Use la herramienta Borde del rótulo de lámina y el cuadro de diálogo configuraciones para:
Cree/Edite un estilo de Borde del rótulo de lámina que puede ser usado para insertar un objeto de borde del rótulo de lámina consistente en hojas individuales, y puede, de manera opcional, ser colocado en una plantilla para facilitar la colocación de un borde del rótulo de lámina en cada hoja en un archivo con muchas capas.
Inserte bordes del rótulo de lámina en el dibujo.
Edite las configuraciones de un objeto de borde del rótulo de lámina individual.
Edite el diseño/los gráficos de bloque de título.
Cambie datos de proyecto para el archivo de dibujo completo (también se puede hacer desde el Administrador de bloque de título).
Edite las configuraciones, cambie el estilo y/o agregue una revisión/publicación para un objeto de borde del rótulo de lámina individual.
Reordene los campos datos de proyecto y campos de datos de hoja para el archivo completo (también se puede hacer desde el Administrador de bloque de título).
Use el comando Administrador de bloque de título para:
Marque múltiples capas, incluyendo capas en archivos externos, para su inclusión en cambios del Administrador de bloque de título.
Aplique cambios a múltiples capas marcadas al mismo tiempo (disponible para revisiones y publicaciones, y muchas otras configuraciones, pero no para todas las configuraciones de borde del rótulo de lámina).
Administre las opciones de nomenclatura de tamaño de hoja para su presentación en el diseño de bloque de título.
